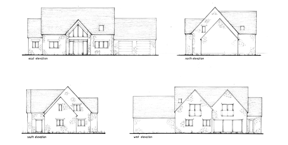
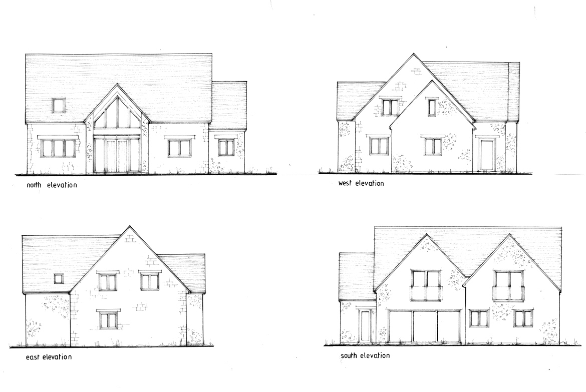
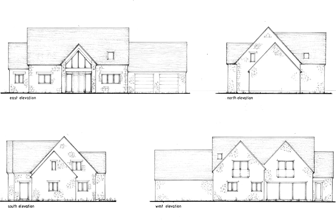
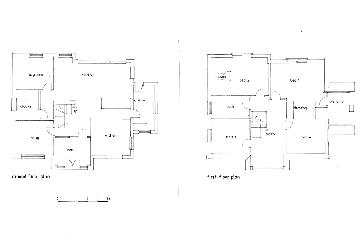
The Middleton Cheney project is an exclusive development positioned in the heart of the popular Middleton Cheney, comprising of two detached executive style homes offering over 3000 sqft of accommodation with both properties having 4 bedrooms, spacious accommodation, gardens, garaging and parking.
This luxury development is a Joint Venture Partnership, if you are interested in the possibility of working together please express your interest by getting in touch today.



